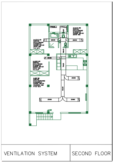
این فایل محتوی نقشه های آبرسانی، فاضلاب، آب باران، گرمایش رادیاتور و تهویه کولر آبی و کانال کشی های مربوطه می باشد که به صورت فایل pdf و قابل استفاده برای مهندسان نظام مهندسی و دانشجویان رشته تاسیسات و مهندسی مکانیک سیالات می باشد. موارد لازم برای نقشه های مربوطه انتخاب رایزرها و چگونگی درج ظرفیت دستگاهها و ابعاد در نقشه ها آمده است ضمنا نوع و مدل دستگهای مورد نیاز هم به صورت جدول در ابتدای صفحه قید شده است .
تعداد مشاهده: 2519 مشاهده
کد فایل:19455
انتشار در:۱۴۰۳/۱۰/۱۹
حجم فایل ها:336.7 کیلوبایت
تعداد صفحات: 26
زبان: انگلیسی
سال انتشار: 1403
محل انتشار: سایت
فرمت: (PDF) غیر قابل ویرایش
کیفیت: تایپ شده - عالی
فهرست: ندارد
جدول و نمودار: دارد
عکس و تصویر: ندارد
حل المسائل کتاب مقاومت مصالح | آندره پایتل و جان کیوسالاس
قیمت : 20,000 تومان
توضیحات بیشتر دریافت فایل
حل المسائل نقشه برداری | جک مک کورمک
قیمت : 40,000 تومان
طراحی و محاسبات فن هود برای آشپزخانه صنعتی - نمونه کار اجرا شده
نقشه اتوکد فلودیاگرام فن کویل
نقشه اتوکد فلودیاگرام موتورخانه
کتاب مکانیک برداری برای مهندسان استاتیک نوشته ی فردیناند پی بیر، ای راسل جانستون و الیوت آرایزنبرگ با ترجمه ی بهرام پوستی
قیمت : 37,000 تومان
کتاب رسم فنی و نقشه کشی جامع عمران - حسین زمرشیدی
قیمت : 43,000 تومان
مجموعه پلان های آماده ساختمانی
قیمت : 10,000 تومان
حل المسائل نقشه برداری مقدماتی | چارلز گیلانی
قیمت : 15,000 تومان
حل المسائل هیدرولوژی مهندسی | سابرامانیا
حل المسائل اصول مهندسی پی براجا داس